こんにちは、アシスタントの黒澤です。
東京も紅葉が美しくなってきましたね。
井の頭公園も良い感じに色付いてきています!
(あいにくの曇り空で失礼します…)
さて、今日はキッチンの間取りについてのお話。
キッチンの“生活感”って、どこまで隠すべきか悩みますよね。
なかでも存在感が大きいのが 『冷蔵庫』
毎日使うものだから、すぐ手の届く配置にしたい。
でも、できれば生活感も抑えたい。
そんなご要望をいただくことがとても多いです。
冷蔵庫は高さも奥行きもあり、キッチンの中で最も“存在感のある家電”。
そのため、冷蔵庫を見せない配置にすることでLDK全体がすっきり整った印象になります。
- スタイリッシュなLDK
- 生活感を抑えた空間にしたい
- キッチンを家具のように見せたい
そんな方は、冷蔵庫の位置を少し工夫するだけで理想に大きく近づきます。
ということで、今日はインスタでも反響の大きかった「冷蔵庫を見せない間取り」の実例を3つご紹介します。
冷蔵庫が視界に入らないだけでLDKはこんなに“整う”
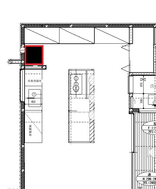
実例①:背面収納内に“ひっそり”隠す


こちらはキッチンの背面収納内に冷蔵庫を配置した間取り。
普段は扉を開放して使い勝手良く、来客時は扉を閉めることでリビングダイニング側からは全く見えません。
生活感を最小限に抑えたい方にぴったりのレイアウトです。
この実例のフォトギャラリーはこちら「White Cube House」
実例②:パントリー内に配置

こちらは、キッチン横並びのパントリー内に冷蔵庫を配置したプラン。
リビング側からは見えない位置にありながら、家事動線上にもすっきり収まっています。
動線とデザインのバランスを両立した間取りです。
この実例のフォトギャラリーはこちら「無垢の木と自然光が心地よい暮らし」
実例③:小壁を設けてリビング側からは見えなくする

冷蔵庫の前に小壁を設け、正面からの視線をカット。
構造的にも取り入れやすく、オープンなキッチンでもすっきり見せられる方法です。
この実例のフォトギャラリーはこちら「グレー収納が映えるすっきりスタイリッシュな暮らし」
どの実例も、料理中にさっと取りに行ける“近さ”を保ちながら、視界からは隠すことができるのがポイント。
また、将来の買い替えも見据えて奥行きや幅に少しゆとりを持たせることも大切です。
これから家づくりをされる方は、ぜひ“冷蔵庫の位置を早めに決める”ことを意識してみてくださいね。
今回のブログと同じ内容のインスタ投稿はこちら↓↓
ぜひ「いいね」や「保存」して、間取りづくりの参考にしてみてください。
この投稿をInstagramで見る
この投稿をInstagramで見る
ジェネシスではこんな家づくりをしています!

家族みんなの「好きなもの」を
詰め込んで造り上げる
ココロが喜ぶ家づくり
夏は涼しく、冬は暖かい
カラダが喜ぶ家づくり
ジェネスでは、ココロもカラダも喜ぶ
デザインにも性能にもこだわった家づくりを
ご提案しています
|
|
|
|

まずは家づくりへの想いをじっくり聞かせてください
|
|
ジェネシスの家づくりは決められた規格から選ぶのではなく、 外部の設計士とともに、お客様の暮らしに合わせた そのために私たちが大切にしているのが ヒアリングにはしっかりと時間を取らせていただき、 新しい家でどんな暮らしを送りたいのか、 細かすぎるかな?と思うことも 遠慮なくすべて聞かせてください。 |
わからないこと・思ったことは何でも仰ってください
|
|
はじめての家づくりではわからないことが多くて当然です。 家づくりの過程で生じた不安や疑問はもちろん やっぱりこうしたい。と途中から加わった要望も気にせず伝えてください。 ひとつひとつ、解決しながら納得した上で進めていきましょう。 |
打合せ回数に制限はありません
|
|
一生に一度の家づくりを満足いくものにしてもらいたいから、 家族みんなで要望を出し合いながら 要望をどこまで実現できるか。何がベストか。 家づくりの過程も楽しい思い出にしていきましょう。 |
ご予算やご希望に合わせて工法からご提案します
![]() |
どのような方法で家を建てるかも ご要望や敷地の条件、ご予算に合わせて |

断熱性の高い家で健康、快適に暮らす
「吹付硬質ウレタンフォーム」「高断熱複層ガラス(Low-Eペアガラス)」が標準仕様。夏は涼しく、冬は暖かい心地いい家を実現します。 |
高気密で快適な空気を外に逃がさない
家の隙間面積を測る「気密測定」を全棟で実施。次世代省エネ基準を上回る高気密な家づくりをしています。 |
地震に負けない安心・安全な家づくり
耐震等級3を標準設定。全棟構造計算を行い「安全性能」を明確にしています。 |

- メンテナンスサポート『家価値60年サポート』
- 瑕疵担保責任保険 最長25年
- 地盤保証 10年
- シロアリ保証 5年
- FRPバルコニー防水保証 10年







