
11/7(日)公開終了
※11/6(土)7(日) 満枠のためご案内終了となります。
デザインにも性能にもこだわった”ここちいい家”モデルハウス

インテリアショップ「CRASH GATE」とコラボ
シンプルナチュラルな高性能住宅が小金井市東町にオープンしました!!
ジェネシスの高気密・高断熱・高耐震のここちいい家をぜひご体感ください。
※見学ご希望の方は必ず事前のご予約をお願いいたします。
※感染予防対策として、消毒・手袋の着用をお願いしております。当日はマスクご着用の上、ご来場ください。
※水曜・祝日定休。週末はご予約が埋まりやすくなっておりますためご希望に添えない場合がございます。
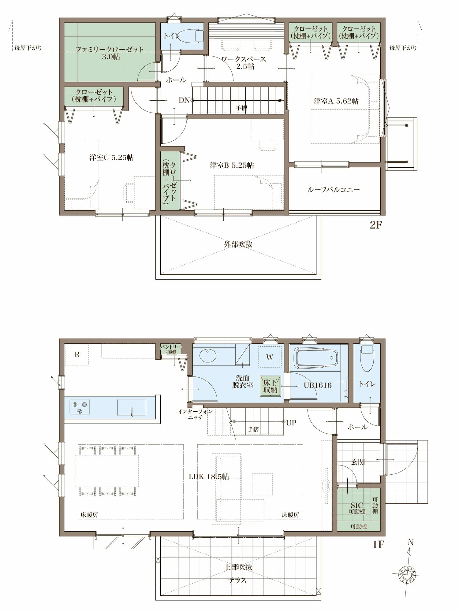
■敷地面積:128.47㎡(38.86坪)
■延床面積: 95.63㎡(28.92坪)
■見どころポイント
・3LDK、ファミリークロゼット、シューズインクローゼット付きの収納充実プラン
・テレワークに便利な2.5帖のワークスペース
・周りを気にせず使えるプライベートテラス
・断熱等性能等級4、耐震等級3の高性能住宅
■延床面積: 95.63㎡(28.92坪)
■見どころポイント
・3LDK、ファミリークロゼット、シューズインクローゼット付きの収納充実プラン
・テレワークに便利な2.5帖のワークスペース
・周りを気にせず使えるプライベートテラス
・断熱等性能等級4、耐震等級3の高性能住宅
外観
木調のサイディングと塗り壁を組み合わせたシンプルナチュラルスタイル
これからの住まいの必需品。宅配ボックス付きのポスト
玄関
玄関ドアを開けてすぐ左手のシューズインクローゼット。
ベビーカーもそのまま入れられるゆったりサイズです。
リビング
18.5帖のLDK。南に面したテラスからたっぷり日差しが差し込みます。
テラス
プライバシーに配慮し化粧壁で囲われたプライベートテラス。
水栓付なのでテラスの掃除やお子様のビニールプールなどにも便利です。
ダイニング
床はオークの突板フローリングを使用。床暖房搭載で冬は足元からポカポカです。
キッチン
キッチンはタカラスタンダードの特注品。
ヘアラインのステンレス天板でスタイリッシュにまとめました。
洗面浴室
朝の忙しい時間帯に便利な2口水栓の洗面台。
サイドキャビネット付きなのでランドリー用品やリネン類なども収納できる便利な仕様です。
ワークスペース
廊下と主寝室の間に設けたワークスペース。
テレワークやメイクスペース、家事室など様々な使い方ができます。
Plan

完成までの現場レポートをご覧いただけます。
