◆終了しました
【9/19~27限定開催】三鷹市の家 完成見学会
- 日時:各日10:00~16:00
- 場所:三鷹市牟礼 ※詳しい住所はお申し込み後にお知らせします

ジェネシスからほど近い三鷹市内にシンプルナチュラルなここちいい家が完成しました。これから家づくりをお考えの方におススメのイベントです♪

ジェネシスからほど近い三鷹市内にシンプルナチュラルなここちいい家が完成しました。
ジェネシスの高気密・高断熱・高耐震のここちいい家を直接ご覧いただけます。
これから家づくりをお考えの方におススメのイベントです♪
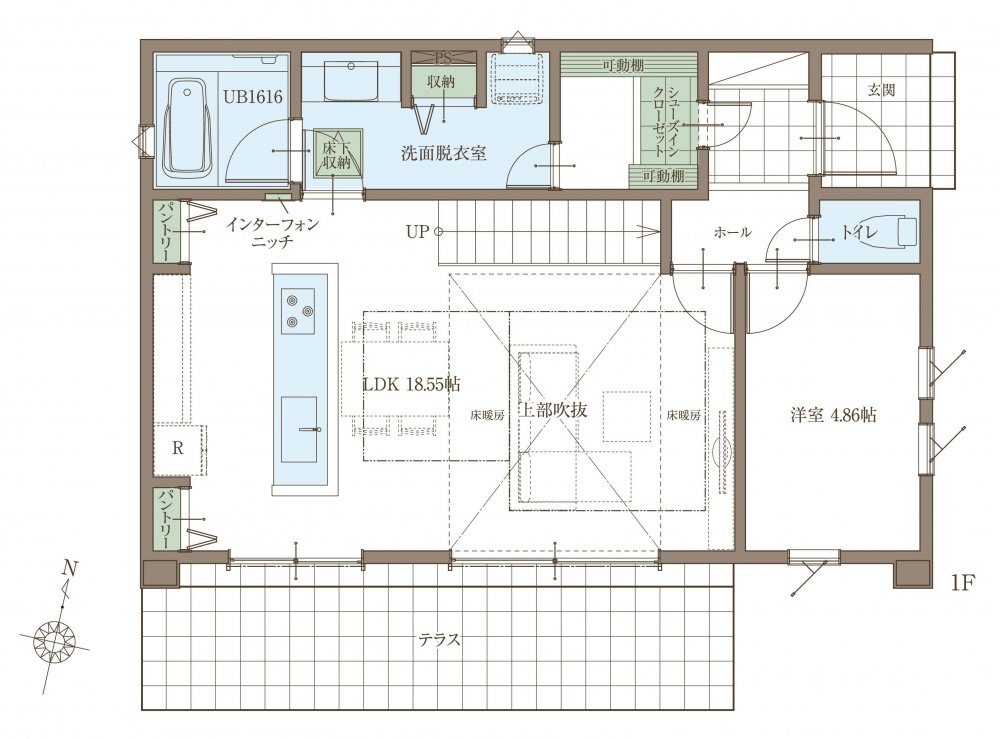
【建物データ】
- 構 造:木造軸組工法ガルバリウム鋼板葺き2階建て
- 敷地面積:146.63㎡(44.35坪)
- 延床面積:105.30㎡(31.85坪)
1F 56.16㎡
2F 49.14㎡
【PLAN:4LDK】


中の様子をちょっとご紹介!




▼▼新型コロナウイルス感染予防対策について▼▼
見学会は完全ご予約制にて少人数に絞ってご案内させていただきます。
アルコール消毒液、使い切りの手袋をご用意しておりますのでご利用ください。
お客様とのお打ち合わせ時および接客時に、スタッフがマスクを着用させていただきます。
対策についてのお知らせページはこちら
【お申し込み方法】
下記予約フォームよりご希望の日時でご予約ください。
また、希望者が多い場合や打合せ等の都合上、ご希望日時に添えない場合がございます。
営業担当者と日程調整の上ご連絡させて頂きますのでご了承下さい。
週末はご予約が埋まりやすくなっております。
ご来場希望日につきましては、コメント欄に第2希望・第3希望までご記入いただけるとスムーズです。
お手数お掛けしますがよろしくお願い致します。
